共同通信PRワイヤー KYODO NEWS PR WIRE
品川区西五反田にデザイナーズ賃貸マンション『LEGALAND西五反田ANNEX』 が竣工
住友林業株式会社
住友林業
住友林業グループの国内総合不動産事業を担う株式会社LeTech(本社:大阪府大阪市北区、代表取締役社長:藤原 寛、以下「当社」という。)は、デザイナーズ賃貸マンションシリーズ「LEGALAND」の『LEGALAND西五反田ANNEX』が2月26日に東京都品川区において竣工したことをお知らせいたします。
【画像:https://kyodonewsprwire.jp/img/202603024787-O8-83PyFJc5】
■『LEGALAND西五反田ANNEX』の物件概要
所在 : 品川区西五反田4丁目
交通 : 東急目黒線「不動前」駅 徒歩8分
敷地面積 : 140.49㎡
延床面積 : 387.48 ㎡
構造・規模 : 鉄筋コンクリート造地下1階付地上4階建
総戸数 : 12戸 (1K:6戸 / 1R:3戸 / 2DK:3戸)
■『LEGALAND西五反田ANNEX』の特徴
【画像:https://kyodonewsprwire.jp/img/202603024787-O11-2ru0T6VO】
LEGALAND西五反田ANNEXは不動前駅から徒歩圏に位置し、目黒・五反田エリアへの高いアクセス性を確保しています。一方で、物件周辺は低層住宅が中心となる穏やかな住環境が広がり、都市の利便性と静謐な日常を両立できる特性を備えています。
外観は、一棟でありながら、まるで3棟が独立して建ち並ぶかのようなボリューム構成とし、都市景観にシャープで洗練された存在感をもたらします。コンクリート打放しを基調とした素材感と、計算された開口部の配置により、住まう人の感性に静かに響くデザインを実現しました。
【画像:https://kyodonewsprwire.jp/img/202603024787-O7-gt7R4ktW】
そして本物件最大の特徴は、居室の独立性を高める空間構成にあります。全住戸が角部屋感覚で暮らせる配置とし、隣戸との視線や生活音への配慮を徹底しました。また、メゾネット住戸プランを設け、上下階を使い分けることで生まれる戸建てライクな生活など、ライフスタイルに応じた多様な住まい方を提案しています。
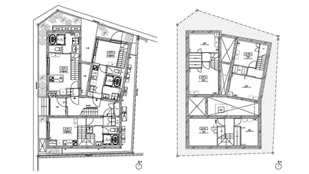
【画像:https://kyodonewsprwire.jp/img/202603024787-O12-6nlB6O7O】
LEGALAND西五反田ANNEX平面図(一階及び地下一階)
■デザイナーズ賃貸マンションシリーズ「LEGALAND」とは?
当社が開発するデザイナーズ賃貸マンションシリーズ「LEGALAND」は、これまで東京都内を中心に国内100棟を超える開発実績(LEGALAND+含む)を誇っています。当社がこれまで培ってきた不動産開発のノウハウやこだわりによって生み出される「LEGALAND」は、快適な居住空間をご提供するとともに、優れた投資資産として国内外の事業会社及び個人投資家様からも高い評価をいただいています。
【画像:https://kyodonewsprwire.jp/img/202603024787-O10-UUe9Khm8】
LEGALAND100棟記念ロゴマーク
①使いやすくゆとりのある空間
耐力壁で建物の荷重を支える「壁式構造」を採用することで、室内に柱や梁が無い、使いやすい居住空間を実現しています。また、それぞれの物件ごとに設備にこだわり、入居者様のニーズの高い充実した設備を備えています。
【画像:https://kyodonewsprwire.jp/img/202603024787-O1-e7Ee1iHo】
②立地へのこだわり
人気の城南・城西エリアを中心にシリーズを展開しています。「駅近」物件にこだわり、入居者様の生活に高い利便性を提供します。
【画像:https://kyodonewsprwire.jp/img/202603024787-O13-nXzj4MWQ】
東京都内のLEGALAND開発実績(2026年1月末時点)
③デザイン性の高さ
外観はコンクリート打放しをベースとし、シンプルながらモダンでスタイリッシュなデザインとしています。画一的なマンションを供給するのではなく、その土地の形状や周辺環境に調和するデザインを供給しています。
【画像:https://kyodonewsprwire.jp/img/202603024787-O4-M2Pe0kOn】
④高いキャッシュフロー効果
これまで培ってきた開発ノウハウによって土地の収益性を最大化し、投資家様へは高キャッシュフローの物件を提供しています。「LEGALAND」はデザイン・収益性で国内外から高い評価を得ています。
⑤「LEGALAND」に込めた想い
「LEGA」はイタリア語で「結ぶ」「繋がる」という意味があります。建物と人々、人々と人々が繋がる場所を提供したいという思いで、「LEGA(繋ぐ)」+「LAND(場所・土地)」で「LEGALAND」と名付けました。
都心、駅近の好ロケーション、広い空間を活かすスタイリッシュな設計、また、メンテナンスの負荷が少なく、周辺環境にも優しい設計を提案し、「LEGALAND」は住む人、持つ人、街の人へ配慮した建物を目指します。
【画像:https://kyodonewsprwire.jp/img/202603024787-O2-524k5Ys3】
その他「LEGALAND」の詳細は当社LEGALANDサイト(https://legaland.jp/)を是非ご参照ください。
■株式会社 LeTech 会社情報
会社名 : 株式会社 LeTech
代表 : 代表取締役社長 藤原 寛
本社 : 〒530-0027
大阪府大阪市北区堂山町3番3号 日本生命梅田ビル 10階
東京支社 : 〒105-0001
東京都港区虎ノ門1丁目2番8号 虎ノ門琴平タワー 7階
設立 : 2000年 9月 7日
ホームページ : https://www.letech-corp.net/
事業内容 : ソリューション事業、不動産管理事業










プレスリリースURL
https://kyodonewsprwire.jp/release/202603024787
本プレスリリースは発表元が入力した原稿をそのまま掲載しております。詳細は上記URLを参照下さい。また、プレスリリースへのお問い合わせは発表元に直接お願いいたします。